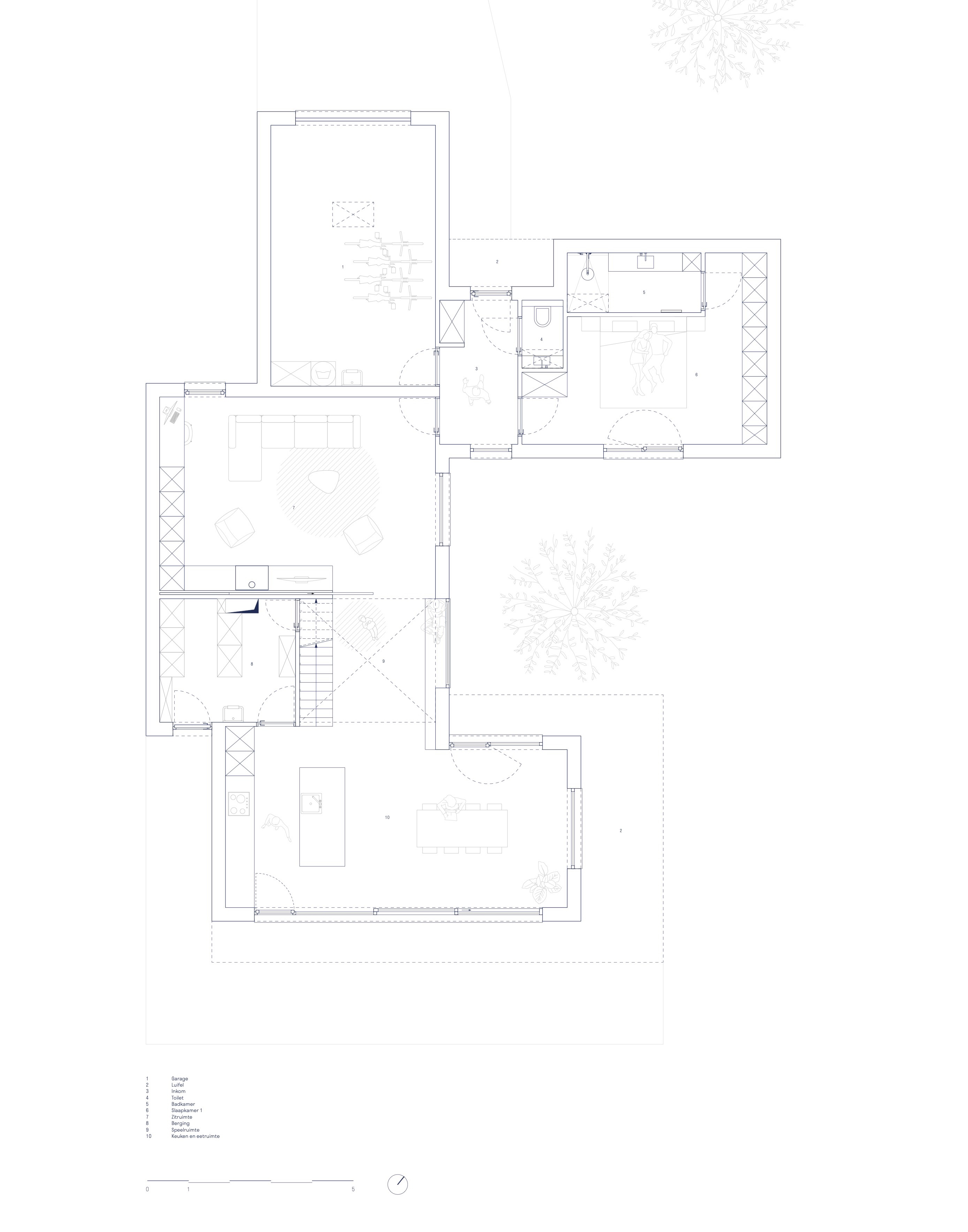
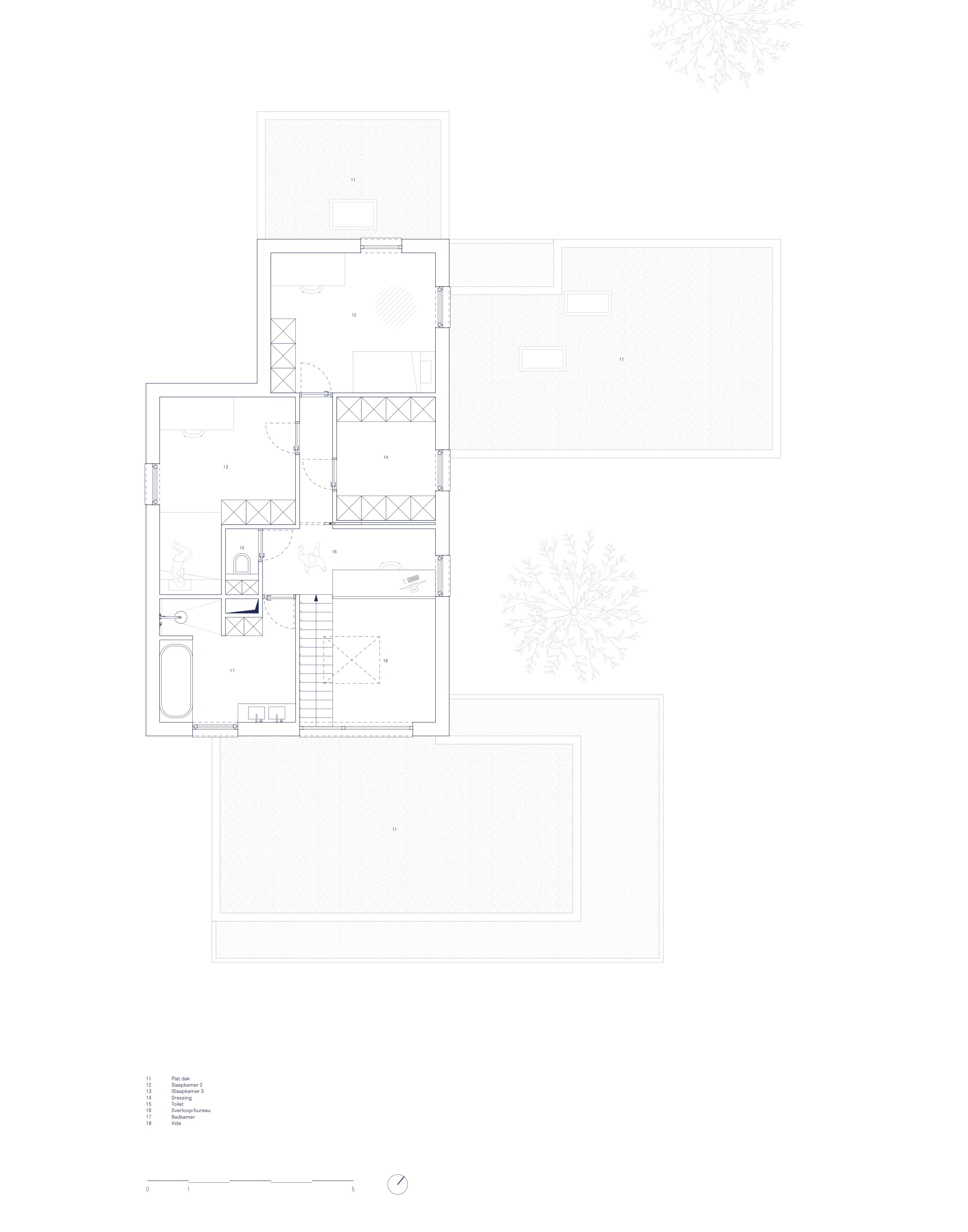
Woning B US is een hedendaagse gezinswoning in massieve CLT (Cross Laminated Timber), opgevat als een reeks verweven volumes die zich subtiel rond de tuin schikken. Het plan ontvouwt zich stap voor stap: van de open leefkeuken naar de gezellige zithoek en de lichtrijke werkplek. De ruimtes vloeien in elkaar over en creëren een natuurlijke gelaagdheid tussen leven, werken en ontspannen.
De houtbouwstructuur in CLT vormt het kloppend hart van het ontwerp. Ze garandeert een gezond binnenklimaat, een snelle en precieze uitvoering en een uitstekende ecologische balans.
De gevels worden bekleed met een groen-blauwe houten beplanking op een lichte plint, een verfijnde combinatie die het volume verankert in het landschap. De kleur wisselt mee met het licht en laat de woning opgaan in de seizoenen.
Het ontwerp getuigt van een evenwicht tussen openheid en geborgenheid, tussen precisie en eenvoud. Deze woning illustreert hoe duurzaam bouwen niet enkel een technische, maar ook een architecturale kwaliteit kan zijn, een leefomgeving die rust, licht en materiaalgevoel in balans brengt.


